
The Municipality of North Grenville is pleased to announce that the Government of Canada is making a major investment in the re-purposing of Bell Hall on Kemptville Campus in downtown Kemptville, creating 60 new affordable residential units for seniors and veterans.
Funding for the Bell Hall project is the result of a partnership between the Canadian Mortgage and Housing Corporation and the Municipality of North Grenville, with the full support of the Kemptville Campus Board.
Through the Affordable Housing Fund under the National Housing Strategy, the federal government has committed to contributing over $24 million in a mix of grants and low‑interest loans repayable over 50 years to repurpose this 55-year-old former Kemptville College residence.
The project is valued at just over $29 million. CMHC loan repayments will be largely offset by rental income from the future tenants at Bell Hall.
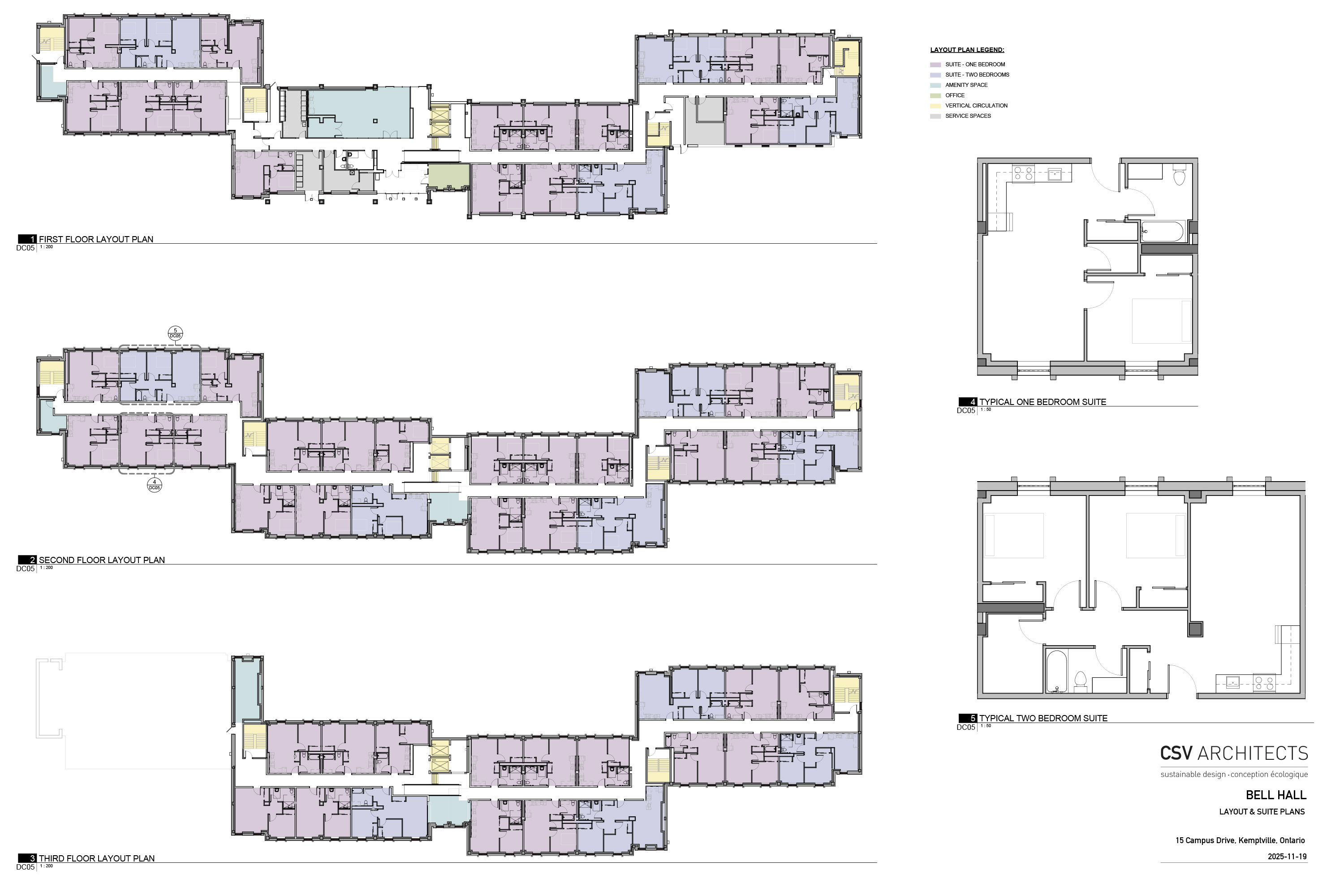
Residents will benefit from a mix of studio, one‑bedroom, and two‑bedroom units, as well as flexible shared spaces designed to encourage social connections and a strong sense of community life.
The development will include 60 affordable multi-residential units, with up to another 20 deeply affordable units supported through rent‑geared‑to‑income programs, ensuring that some seniors with the lowest incomes can live in a high‑quality, well‑located building. Many units will be tailored to support aging in place, helping residents remain independent and connected.
Construction is expected to continue through 2026 and 2027, with first residents anticipated in late 2027. Long‑term affordability requirements will ensure these homes remain within reach of seniors and veterans who need them most for many years to come.
Suites Layout and Photos
Who's listening
Timeline
Demolition and Abatement
Ongoing
Ongoing
Project Tendering
Ongoing
Construction begins
April 2026
April 2026
Anticipated Occupancy
Fall 2027





